怎么画好厨房平面图?

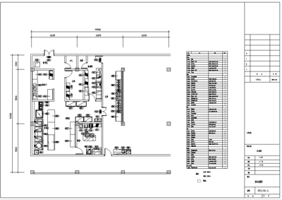
另外在开始设计的时候还要出厨房的水电布置图。另外在开始设计的时候还要出厨房的水电布置图,厨房平面图怎么画?要分几张图来画第一:厨具的平面布置第二:排烟管的布置第三:厨房用电的平面图第四:给排水管的平面及系统图\地面明沟布置这几个做好了,怎样绘才能清楚表示出厨房的布置情况。

厨房布置图1、橱柜平面图怎么画

问题一:如何画橱柜图纸你是指CAD图?可以给你个样板。一般橱柜图纸有:厨房平面图,厨房各个立面的立面图,还有关于橱柜材质的说明文字。另外在开始设计的时候还要出厨房的水电布置图。在橱柜生产的时候还要出台面的台面图。要画橱柜图纸的话,先要测量客户厨房的尺寸。然后了解客户厨房里要放什么电器。接下来才是出图纸。出了图纸后还要与客户沟通,看客户满不满意,根据客户的意愿来调整方案。

厨房布置图

想画出来更好的橱柜平面图纸,给出如下建议:充分了解橱柜客户的需求,了解业主对橱柜的要求,是否需要放置很多的橱柜电器(烤箱、微波炉、冰箱等);充分了解这些电器的尺寸,具体的尺寸需要向业主进行询问清楚他所买的电器的尺寸;充分了解厨房的操作的流程,从冰箱拿菜、洗菜、切菜、烧菜等,明确水槽、燃气灶等放置的位置;了解木工做工的工艺,要保证做出来是美观舒适供用。

厨房布置图2、如何画橱柜图纸

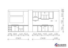
现在比较常见的橱柜类型有一字型橱柜、L字型橱柜、U字型橱柜,一般的设计图纸是CAD形式的,它包括了橱柜的平面设计图、地柜分解图、台面图、立体土等等。如果设计平面布置图,我们要写清楚图纸是由内向外画的,然后一次标注地柜尺寸、吊柜尺寸以及总尺寸。台面图就要标注台面的宽度、炊具的位置、水槽的位置。在标注的时候炊具和水槽的中心线都要以断面处作为起点。

厨房布置图

接下来我们来具体的分析一个橱柜设计图纸是怎样的吧。L型橱柜能够很大程度的保留厨房中间的空余地段,我们在这里随意的穿梭也不会觉得拥挤,这一点相比较以一字型橱柜要好很多。橱柜底下的收纳柜面积都很大,虽然这样可以放置很多大的锅具之类的,但是一些小的物品就不好处理了,全都放在柜子里会很杂乱无章,这就需要我们在设计橱柜下方的收纳柜时额外空出两个收纳柜做一个分隔。

厨房布置图3、大户型厨房应该怎么设计

摘要:大户型的厨房我们应该怎么装修设计呢,大户型厨房有足够的空间让我们利用,普通面积的厨房我们最在乎的就是实用,那么大户型的厨房我们需要注意哪些要点呢?大户型厨房装修设计应该考虑充分利用空间、电路设计合理、台面兼具准备区和操作区的功能,下面就来具体介绍一下,一起来看看吧。大户型厨房应该怎么设计大户型的厨房我们应该怎么装修设计呢,大户型厨房有足够的空间让我们利用,普通面积的厨房我们最在乎的就是实用,那么大户型的厨房我们需要注意哪些要点呢?

厨房布置图

有些业主还会经常在这里举行派对等聚会活动。作为一个公共社交场所,在装修厨房时充分地利用高度方向上的空间,在满足了厨房作为基本的储物空间、操作空间的前提下,要预留出足够的活动空间。另外,设计师还应该要对厨房空间进行分割,一般采用半岛式或岛式布置,在岛的上方可以设计玻璃吧台、铝制吊架、实木系列吊架等。既可充分利用空间又能让其发挥便利。

厨房布置图4、装修水电改造布局图客餐厅|厨房|卧室|卫生间详细介绍

房屋装修水电布局属于隐蔽工程,对家装十分重要,今天我们就为大家分析一下客餐厅|厨房|卧室|卫生间水电布局,开关、插座一目了然,大家一起来学习一下吧!客餐厅水电装修布局:客餐厅的开关插座除了照明功能外,主要满足影音娱乐及方便用餐的需求。1、电视墙处组合插座,集插座、电视、网络线一体,整体美观,不必担心强弱电电波干扰,不用为单个面板安装高低不平间距有大有小而闹心。

厨房布置图

3、餐厅1个五孔插座,随时都可以使用电火锅招待亲朋好友。4、电视墙含1根50线暗管,壁挂电视线从此规整美观。5、空调16A三孔插座,大功率电器4平方电线,防止引起意外。厨房水电布局注意事项:房中是电器最多的区域,厨房水电点位的配置也是重中之重。厨房点位布置中要考虑各种电器的位置、高度的合理性、美观性以及使用的安全性。

厨房布置图5、餐厅厨房平面图怎么画

问题一:厨房平面图怎么画问题二:75平饭店的平面图怎么画自己拿皮尺量尽距画出墙厚画出门窗在墙上的位置标上高宽基本的就可以这样问题三:高手,excel如何画食堂平面图?急把行高列宽调得很小,然后根据房间面积合并单元格。我们单位的房屋平面图我就是这样画的。问题四:办理餐饮服务许可证如何绘制卫生设施布局图、各功能分区平面图用软件画个大概就好了。

厨房布置图

用铅笔画也行。标注餐厅的桌子、凳子、大门、消毒柜、清洗池等你们那里所有的设备。这个我们也帮不了你。因为那个图是和你的餐厅和厨房的摆设是一样的。问题五:CAD厨房灶台怎么画看看这么画^_^问题六:餐饮许可证的平面图要和店内设计的一样吗?如果要,要怎么画厨房平面图,按着卫生许可布局。会去现场看的!问题七:餐饮平面图怎么标尺寸一、外部尺寸在水平方向和竖直方向各标注三道。

厨房布置图6、用CAD绘制厨房平面图,怎样绘才能清楚表示出厨房的布置情况??

在平面布置图上放上冰箱,燃气罩,洗菜盆,盘子等等。盘子下面可以画线,偏移30,做橱柜。再者就是附上文字说明。你要把每个地方要摆放的东西,用模块把他表现出来。注意:一定要把每件东西所占位置的尺寸标示准确。你可以在平面布置图上放些橱柜,冰箱之类的,也可以用中文表明厨房。要分几张图来画第一:厨具的平面布置第二:排烟管的布置第三:厨房用电的平面图第四:给排水管的平面及系统图\地面明沟布置这几个做好了,

厨房布置图7、厨房平面图怎么画?

厨房平面图怎么画橱柜平面图怎么画用CAD软件或者手绘画等。想画出来更好的橱柜平面图纸,给出如下建议:充分了解橱柜客户的需求,了解业主对橱柜的要求,是否需要放置很多的橱柜电器(烤箱、微波炉、冰箱等);充分了解这些电器的尺寸,具体的尺寸需要向业主进行询问清楚他所买的电器的尺寸;充分了解厨房的操作的流程,从冰箱拿菜、洗菜、切菜、烧菜等,明确水槽、燃气灶等放置的位置;了解木工做工的工艺,要保证做出来是美观舒适供用。

厨房布置图

可以给你个样板。一般橱柜图纸有:厨房平面图,厨房各个立面的立面图,还有关于橱柜材质的说明文字。另外在开始设计的时候还要出厨房的水电布置图。在橱柜生产的时候还要出台面的台面图。要画橱柜图纸的话,先要测量客户厨房的尺寸。然后了解客户厨房里要放什么电器。接下来才是出图纸。出了图纸后还要与客户沟通,看客户满不满意,根据客户的意愿来调整方案。

厨房布置图8、厨房平面图怎么画厨房装修要注意哪些事项

对于后期生活会造成很大的影响,因此在装修厨房的同时,应该要先做好平面图设计,然后再找专门的施工团队来进行装修,可是有关厨房平面图怎么画呢?另外对于厨房装修要注意哪些事项,在进行装修之前都是需要明白的。厨房装修的好还是非常重要的,因为如果厨房装修设计的不好,那么对于后期生活会造成很大的影响,因此在装修厨房的同时,应该要先做好平面图设计,然后再找专门的施工团队来进行装修,可是有关厨房平面图怎么画呢?

厨房平面图怎么画厨房的布置一般为:U字形、L字形、一字型和回字形的。先把煤气或者天然气的位置选好,然后再固定橱柜位置,最后是冰箱或者烤箱等电器的位置,剩下的就是可移动家居布置,厨房装修要注意哪些事项1、台面:应选用防火、防水材料制作台面。台面的高度应以家里最常做饭的人的身高为依据来确定。

未经允许不得转载:获嘉县一一网络有限公司 » 怎么画好厨房平面图?

相关文章